670/21 Red Head Road, Red Head
Retirement
Relaxed Coastal Living in the Heart of "Beachfront" – Hallidays Point
Welcome to effortless over-50s living just 100 metres from the ocean, where peaceful coastal surrounds meet modern comfort in one of Hallidays Point's most sought-after lifestyle communities.
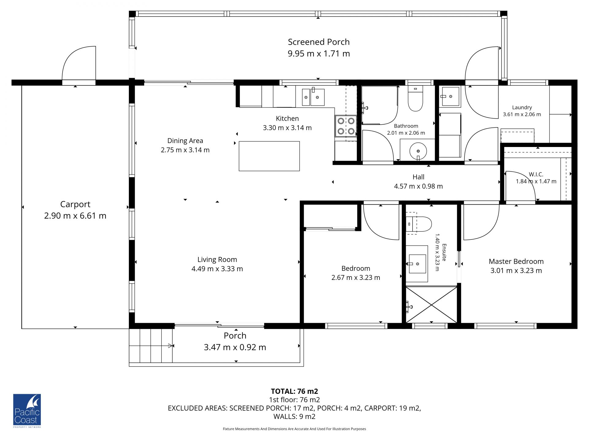
Beautifully built by MacDonald Homes, this spacious 2-bedroom, 2-bathroom residence has been thoughtfully designed for easy everyday living. The master bedroom features a walk-in robe and ensuite, while the second bedroom includes a built-in robe for added convenience.
The light-filled open-plan lounge, dining and kitchen is the true heart of the home, complete with quality appliances, elegant wood flooring throughout, ceiling fans, and air-conditioning to the main living area and master bedroom. Stylish Veri shades add a soft coastal feel to the lounge room.
Step outside to a long, relaxing verandah, beautifully enclosed with quality zip-track blinds-the perfect weatherproof space to unwind, entertain, or enjoy your morning coffee while overlooking the peaceful paddock at the rear. The fully enclosed backyard is ideal for pets, offering space and security.
Additional features include a spacious laundry, beautifully landscaped gardens, and exceptional privacy in a quiet, friendly community.
Residents of "Beachfront" enjoy exclusive access to the ocean, just moments away, via a private gate and key access-one of the many reasons this location is so tightly held.
This is coastal living made easy-peace, privacy, and the sound of the ocean right at your doorstep.
Beautifully built by MacDonald Homes, this spacious 2-bedroom, 2-bathroom residence has been thoughtfully designed for easy everyday living. The master bedroom features a walk-in robe and ensuite, while the second bedroom includes a built-in robe for added convenience.
The light-filled open-plan lounge, dining and kitchen is the true heart of the home, complete with quality appliances, elegant wood flooring throughout, ceiling fans, and air-conditioning to the main living area and master bedroom. Stylish Veri shades add a soft coastal feel to the lounge room.
Step outside to a long, relaxing verandah, beautifully enclosed with quality zip-track blinds-the perfect weatherproof space to unwind, entertain, or enjoy your morning coffee while overlooking the peaceful paddock at the rear. The fully enclosed backyard is ideal for pets, offering space and security.
Additional features include a spacious laundry, beautifully landscaped gardens, and exceptional privacy in a quiet, friendly community.
Residents of "Beachfront" enjoy exclusive access to the ocean, just moments away, via a private gate and key access-one of the many reasons this location is so tightly held.
This is coastal living made easy-peace, privacy, and the sound of the ocean right at your doorstep.
